Una 'nueva vida' para el histórico edificio de La Sirena: Nuevos usos, modernización y todos los planos
PATRIMONIO
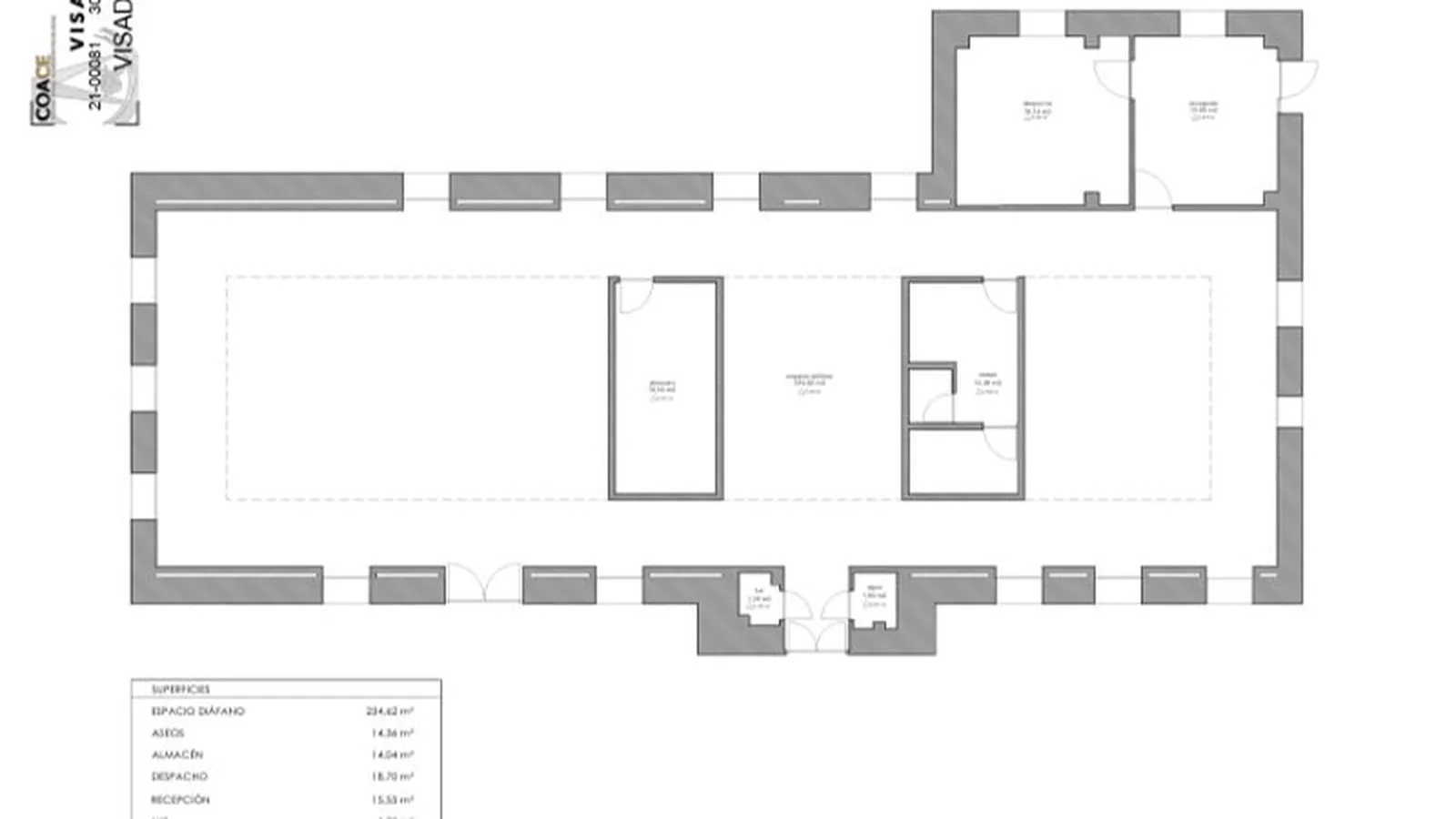
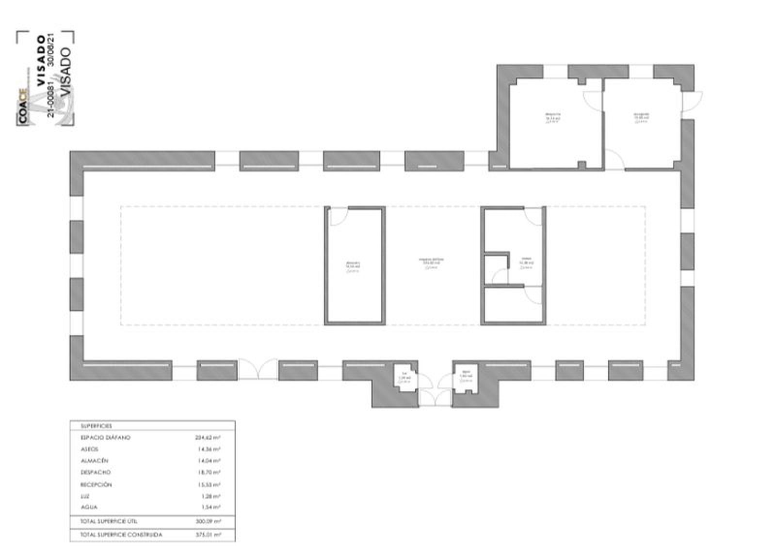
El objetivo principal es adaptar La Sirena a un uso administrativo, con tres espacios diferenciados: una sala destinada a las asociaciones de deportes de montaña y senderismo, una sala para el centro de avistamientos de aves y una tercera para Obimasa
La Ciudad Autónoma de Ceuta ha lanzado un proceso de licitación para la ejecución de las obras de reforma del emblemático Edificio La Sirena, situado en Punta Almina, con un presupuesto base de 319.988,46 euros y un plazo de ejecución de 4 meses. La licitación, publicada por el Órgano de Contratación de la Ciudad Autónoma de Ceuta, está abierta hasta el próximo 8 de abril, tanto para la obtención de pliegos como para la presentación de ofertas, que deberán enviarse antes de las 23:59 horas de esa fecha.
El proyecto de reforma, diseñado por el arquitecto Juan Miguel Rocher Dorado, busca rehabilitar este histórico edificio, que data de 1913 y ha sido testigo de la evolución de la ciudad y su vinculación con el mar. El objetivo principal es adaptar La Sirena a un uso administrativo, con tres espacios diferenciados: una sala destinada a las asociaciones de deportes de montaña y senderismo, una sala para el centro de avistamientos de aves y una tercera para Obimasa. Además, el edificio contará con una recepción y un despacho para la Consejería de Fomento, Medio Ambiente y Servicios Urbanos. Los aseos y el almacén actuales se mantendrán, así como la estructura externa del edificio.
La reforma también tiene un componente turístico importante, ya que el inmueble continuará siendo accesible al público, brindando la oportunidad de conocer un pedazo de historia ceutí. Para ello, el interior se dividirá mediante cerramientos de vidrio que permitirán separar las distintas áreas sin perder la conexión con el entorno. El proyecto también incorpora elementos simbólicos relacionados con la sirena, como un juego de cuerdas de algodón y un diseño de luces y sombras, que evocan la niebla frecuente en el estrecho de Gibraltar.
Detalles del proyecto
El trabajo de rehabilitación incluirá:
- Reestructuración interior: Distribución de los nuevos espacios, con la instalación de mamparas de vidrio y acabados de alta calidad, como suelos de tarima en las oficinas, baldosas cerámicas antideslizantes en los aseos y almacén, y pintura plástica lisa de color blanco para las paredes.
- Restauración de carpinterías y cerramientos: Conservación de las carpinterías de madera originales y el mantenimiento de las fachadas exteriores sin alteraciones significativas, más allá de la mejora en revestimientos y carpinterías.
- Elementos arquitectónicos: Se restaurarán las ventanas y puertas de madera, manteniendo su diseño original. La estructura del edificio no se alterará, garantizando la estabilidad de la losa de hormigón y los pórticos metálicos.
- Instalaciones: Se actualizarán las instalaciones de electricidad, fontanería, ventilación y climatización, adaptando el edificio a las normativas actuales y mejorando la eficiencia energética. Además, se incorporarán sistemas de protección contra incendios.
- Adecuación del exterior: Se mantendrá el recorrido perimetral exterior, destacando el paisaje natural circundante y mejorando la accesibilidad con rampas de acceso adaptadas.
Este proyecto, enmarcado en la inversión C14.I3 “Estrategias de Resiliencia Turística para Territorios Extrapeninsulares” del Plan de Recuperación, Transformación y Resiliencia (PRTR), está financiado por la Unión Europea a través de los fondos Next Generation EU, lo que refuerza su relevancia para el impulso de la actividad turística en Ceuta.
Un edificio con historia
El Edificio La Sirena fue construido en 1913 con el propósito de reforzar el sistema de señales acústicas para la navegación en el estrecho de Gibraltar. Su peculiar sonido, que se asemejaba al mugido de una vaca, le valió el apodo de "la vaca". El nuevo diseño de la reforma buscará reflejar esta historia mediante un concepto arquitectónico que evoca la niebla del estrecho, con cerramientos de vidrio y cuerdas que simbolizan las condiciones climáticas que históricamente han afectado la zona.
Las obras de rehabilitación representan un paso importante en la conservación de este valioso patrimonio arquitectónico, asegurando que el Edificio La Sirena continúe siendo un símbolo de la identidad ceutí y un atractivo turístico y cultural en la ciudad.
Sigue el canal de El Pueblo de Ceuta en WhatsApp. Pincha aquí, dale a SEGUIR y encontrarás toda la actualidad informativa de la jornada ceutí